Menu
Un projet réalisé par :Les habitants  Architecte à Marseille

Réhabilitation d'une ferme dans les Vosges

 Marseille - 13
Les habitants
Accueil Projets Réhabilitation d'une ferme dans les Vosges

Mission : Permis de construire - Dossier de Consultation des Entreprises
Maître d’Ouvrage : privé
Surface : 230m²
Budget : 350.000 euros
Maître d’œuvre : Tereza GALLAVARDIN architecte
Charles GALLAVARDIN T3 architecture
Année: 2009

Réhabilitation d'une ferme dans les Vosges

REHABILITATION ECOLOGIQUE:
Chantale et Laurent ont acheté une vieille ferme vosgienne avec l’idée de la reconvertir en maison principale en utilisant les principes de la réhabilitation écologique. Leur souhait été de créer un logement qui peut s’adapter au niveau de consommation d’énergie au nombre de personnes qui y habitent (un couple à l’année et ponctuellement les enfants et les amis). Un tiers de la maison et thermiquement indépendant et peut être chauffé que ponctuellement. Associé à un bureau d'étude thermique, nous avons opté pour l’isolation renforcée afin de réaliser des économies d'énergie importantes: triple vitrage, sur-isolation de la toiture et des murs de de pierre en ouate de cellulose); pour le chauffage, nous sommes partis sur une chaudière à copeaux de bois avec plancher chauffant et solaire thermique.
Aujourd'hui fortement orientée au Nord, l'intention première a été d'ouvrir largement la façade Sud (grande baie vitrée sur double hauteur) afin de profiter des apports solaires passifs et de la vue dégagée sur la campagne environnante.
Sinon, les espaces ont été traité de façon contemporaine: percement des murs de pierre pour relier cuisine et salon, double hauteur, mezzanine, jacuzzi ouvert sur la nature...

  • Réhabilitation d'une ferme dans les Vosges : AVANT

    AVANT

  • Réhabilitation d'une ferme dans les Vosges : PLAN RDC

    PLAN RDC

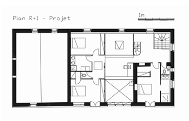
  • Réhabilitation d'une ferme dans les Vosges : PLAN R+1

    PLAN R+1

  • Réhabilitation d'une ferme dans les Vosges : COUPE TRAVERSANTE

    COUPE TRAVERSALE

  • Réhabilitation d'une ferme dans les Vosges : FACADE SUD

    FACADE SUD

Trouvez un architecte pour votre projet

Protection de vos données personnelles

Depuis toujours, architectes-france.com ne transfère aucune donnée personnelle à d'autres acteurs que ceux directement concernés par le projet (architectes, architectes d'intérieur...) et qui appartiennent à son réseau. Nos listes ne sont jamais transmises ou vendues à des partenaires extérieurs, même si ceux-ci appartiennent au domaine de la construction.
Toute modification dans ce domaine ne serait effectuée qu'avec votre consentement.

Je consens à ce que mes données personnelles soient collectées pour permettre à architectes-france de transférer votre projet aux architectes. Seul Architectes-france, ses équipes internes et la maitrise d'oeuvre concernée par le projet y ont accès. Aucune transmission de données à des tiers à l'exclusion de ceux décrits ci dessus n'est réalisée.

Mes données téléphoniques seront uniquement utilisées par Architectes-france.com et les architectes de notre réseau dans le cadre de la qualification et du suivi de mon projet.

Les données sont conservées pendant une durée de 18 mois courant à partir des derniers contacts effectifs entre architectes-france et vous ou architectes-france et un membre de la maitrise d'oeuvre en rapport avec ce projet et qui serait en relation avec architectes-france.

Conformément à la loi « informatique et libertés », vous pouvez exercer votre droit d'accès aux données vous concernant et les faire rectifier en contactant : Architectes-france, 23 avenue du Mirail - parc du Mirail - 33370 Artigues-près Bordeaux. Tél. 05.47.74.51.01 - contact@architectes-france.com

Trouvez un architecte pour votre projet

Protection de vos données personnelles

Depuis toujours, architectes-france.com ne transfère aucune donnée personnelle à d'autres acteurs que ceux directement concernés par le projet (architectes, architectes d'intérieur...) et qui appartiennent à son réseau. Nos listes ne sont jamais transmises ou vendues à des partenaires extérieurs, même si ceux-ci appartiennent au domaine de la construction.
Toute modification dans ce domaine ne serait effectuée qu'avec votre consentement.

Je consens à ce que mes données personnelles soient collectées pour permettre à architectes-france de transférer votre projet aux architectes. Seul Architectes-france, ses équipes internes et la maitrise d'oeuvre concernée par le projet y ont accès. Aucune transmission de données à des tiers à l'exclusion de ceux décrits ci dessus n'est réalisée.

Mes données téléphoniques seront uniquement utilisées par Architectes-france.com et les architectes de notre réseau dans le cadre de la qualification et du suivi de mon projet.

Les données sont conservées pendant une durée de 18 mois courant à partir des derniers contacts effectifs entre architectes-france et vous ou architectes-france et un membre de la maitrise d'oeuvre en rapport avec ce projet et qui serait en relation avec architectes-france.

Conformément à la loi « informatique et libertés », vous pouvez exercer votre droit d'accès aux données vous concernant et les faire rectifier en contactant : Architectes-france, 23 avenue du Mirail - parc du Mirail - 33370 Artigues-près Bordeaux. Tél. 05.47.74.51.01 - contact@architectes-france.com